Obras em bairro inteiro: só falta o 'sim' do Tribunal
- Detalhes
- Categoria: Notícias Regionais
- Publicado em segunda-feira, 16 novembro 2020 09:01
- Escrito por: Ângelo Marques
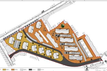
A vereação na Câmara da Póvoa de Varzim aprovou duas medidas com reflexos no espaço público. Foi dada luz verde à proposta de adjudicação da requalificação do Bairro dos Pescadores que, segundo o presidente da Câmara, Aires Pereira, vai custar mais de 900 mil euros (863 mil euros mais IVA), sendo um investimento desejado pela comunidade que habita aquela zona. A obra vai ficar a cargo da empresa Acácio da Caridade Ferreira & Irmão e todo o processo foi remetido para o Tribunal de Contas tendo em vista a obtenção do visto para o arranque dos trabalhos. Será feita a substituição dos pavimentos e infraestruturas existentes, nomeadamente águas residuais domésticas e pluviais, abastecimento de água, redes elétricas e iluminação pública. A nível ambiental foi decidida a inclusão do município num projeto desenvolvido em parceria na Área Metropolitana do Porto e que prevê aumentar a mancha verde nos territórios, ou seja, criar condições para o repovoamento de árvores em espaços públicos. O Centro Regional de Excelência em Educação para o Desenvolvimento Sustentável prevê a plantação de 100 mil árvores e permitirá um aumento das áreas verdes com espécies autóctones. Este projeto de educação ambiental contará com a colaboração com as escolas e associações do concelho.
As declarações podem ser ouvidas na edição local.





by WebFarol